Carte des biens immobiliers
Bouton du menu de navigation

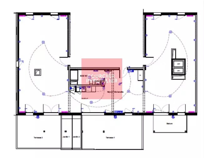
VIILEJUIF (94) - VENTE LOCAL COMMERCIAL 171,21 M²

Agent Immobilier: Gabriel JORDA

email: gabriel@courcier-immobilier.fr

téléphone: +33695766951


Vente

800 000 EUR

171.21 m²

Icone type de bien

DESCRIPTION DU BIEN

À Villejuif, commune dynamique et en plein développement aux portes de Paris, le programme Côté Jardin s’inscrit dans un environnement résidentiel qualitatif, alliant modernité, accessibilité et cadre de vie agréable. Au sein de ce programme récent, ce local professionnel de 171,21 m² offre une belle opportunité d’implantation. Il est livré brut de béton, avec réseaux en attente et vitrines posées, laissant une totale liberté d’aménagement pour des bureaux, des professions libérales ou des activités tertiaires selon la destination autorisée. Les volumes généreux permettent une organisation fonctionnelle et évolutive des espaces. Deux places de parking privatives en sous-sol sont incluses, apportant un confort appréciable dans ce secteur recherché. Ce local constitue une solution idéale pour une activité souhaitant s’installer durablement dans un programme moderne et attractif à Villejuif.


INFORMATIONS COMPLÉMENTAIRES

Surface :

171.21m²

Prix :

800 000 EUR

Prix m²

4673 €/m²

Type actif

Commerce

VISITE 3D

média indisponible

Bouton affichant un formulaire de contact
Bouton affichant plusieurs actualités

Contactez-nous ici !

Nom

Société

Téléphone

Email

Message