Carte des biens immobiliers
Bouton du menu de navigation

MARCOUSSIS (91) A LOUER LOCAL D'ACTIVITES 150M²

Agent Immobilier: Gabriel JORDA

email: gabriel@courcier-immobilier.fr

téléphone: +33695766951


Location

6 777 EUR / Mois

150.6 m²

Icone type de bien

DESCRIPTION DU BIEN

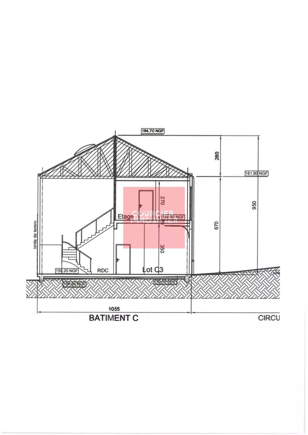
MARCOUSSIS (91) A LOUER LOCAL D'ACTIVITES 150M² Proche de Massy TGV - RER et d’Orly , avec un accès rapide à la A10 , la N118 et la N104. Local d'activité neuf de 150m² à louer (dont 98.60 m² d’entrepôt en RDC et 52 m² de bureau en Mezzanine). 3 places de parkings incluses dans le loyer Hauteur libre sous bac : 6 .70 m ; Hauteur libre sous mezzanine : 3. 5 0 m ; Hauteur libre sous le plafond de la mezzanine : 2 .70 m Porte sectionnelle : 3 m X 3 m - Bail commercial 3/6/9 - 3 mois de loyers HT & HC à verser à la signature du bail - Participation aux frais de rédaction de bail: 1 450 € HT - Estimation prévisionnelle des charges de copropriété : 12 €/m² à l’année. - Impôt Foncier : Année 1 : 872 € – Année 2 : 872 € – Année 3 & suivantes : 1 288 € le local est livré brut de béton, fluides en attente. Livraison : fin Mars 2024


INFORMATIONS COMPLÉMENTAIRES

Surface :

150.6m²

Prix :

6 777 EUR / Mois

Prix m²

45 €/m²

Type actif

Entrepôts

VISITE 3D

média indisponible

Bouton affichant un formulaire de contact
Bouton affichant plusieurs actualités

Contactez-nous ici !

Nom

Société

Téléphone

Email

Message